316 Sunny Dell Road
New Garden Township
Chester County, Pennsylvania
Jeroen van den Hurk
Center for Historic Architecture and Design
University of Delaware
Margaret Jones
New Garden Historical Commission
June 17, 2005
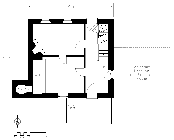
Located just south of the Gap & Newport Turnpike (PA 41) on the east side of Sunny Dell Road, the Rowan House is a good example of how architectural trends and changes in domestic sensibilities shaped late colonial architecture in this part of southeastern Pennsylvania. The Rowan House does not stand alone in this matter, but reflects sentiments which were prevalent in New Garden Township during this period and are seen in the Freed-Hoopes-Wilson-Brown House (begun circa 1735-50, demolished 2003) on Southwood Road and the Miller-Reynolds House (begun prior to 1770) on Penn Green Road. The Rowan house as we see it today has a simple rectangular plan with a cross gable roof; the latter was added towards the end of the nineteenth century giving it a more Victorian appearance. To arrive at this point, however, the building went through various stages that reflect both advances made in domestic engineering as well as changes in architectural taste. Architectural evidence points towards three major periods of construction dating between the 1770s and the 1830s. Based on archival evidence and a datestone in the north elevation of the house, Moses Rowan built the oldest surviving section of the house around 1770.
The house Moses Rowan built stands on land, which was part of John Wiley's 200-acre Penn Grant of 1713. Wiley held the land for only a decade, selling it to John and Nehemiah Hutton who in turn sold it in 1741 to Nathaniel Jenkins, a Philadelphia storekeeper. Apparently, the 200-acres were an investment property for Jenkins. His widow, Jane Jenkins, advertised the farm for sale in 1761, but it did not sell until 1770 when Moses Rowan purchased it from her estate at sheriff's sale. At the time of the sale, which occurred in Isaac Allen's tavern, Jane Jenkins and her son, James, were listed as residents late of Philadelphia.
To account for the years between 1761 when Jane Jenkins first advertised the farm for sale and the 1770 date of the sheriff's sale, we need to look at the Jenkins' farm neighbor to the south, William Rowan. It appears that William Rowan and his son, James, were renting the Jenkins property with the hope that James might purchase it. To that end, James enlisted his younger brother, Moses, a ship joiner living in Philadelphia, to build a stone house to either adjoin or replace the "square log house" on the property. However, before James could consummate the purchase, he died, making his brother, Moses, his heir. Apparently, Moses completed the house, placing a date stone with "M R" and "1770" on the north side. Moses Rowan married Hannah Jackson in this year. She was the sister of the clock maker, Isaac Jackson.

A Pennsylvania Gazette notice of March 19, 1761 describes the property of Jane Jenkins of Philadelphia, in New Garden Township. One of the parcels she owned contained a "good square log house." The term "square" does not refer to the shape of the footprint of the building, but to the fact that the logs themselves had been hewn. There is no surviving evidence for this log house, but this could have been the earliest dwelling to have occupied the current site. The oldest surviving part of the building most likely came within a decade of the log house. A date stone on the north elevation of this block bears the initials "M R" and the date "1770." These initials most likely refer to Moses Rowen, but interestingly enough Moses did not take possession of the property until 1774.


"IA" on south elevation | "SM" on west gable-end | "IE"(?) on west gable-end |
The period I house consisted of a two-story stone dwelling with an interior chimneystack on the west gable end. Two bays divided the south elevation on both the first and second floor. A door located in the eastern half of the south elevation gave entry to the side passage which ran the depth of the building and also had a door at the northern end. The door in the east gable end could be contemporary with first period of construction and could have connected the stone section of the house to the original log section. A straight flight of stairs located along the east gable wall led to the second floor. At the north end of the stairs a flight of stairs led to the cellar. The cellar only extended a little more than thirteen feet west from the east gable wall. This cellar could have been reached via an exterior bulkhead entrance on the south side of the house. The ceiling joists were hewn and whitewashed and the walls are coated with a thin layer of white stucco. Two niches located in the cellar walls provided extra storage space. Splines join the floorboards of the first floor. Splined floorboards would have been harder to produce than tongue and groove floorboards and they indicate an additional level of refinement which the owners wanted to achieve.
In north wall | In east wall |
The spatial arrangement of the first floor was a double-pile-side-passage plan. A corner fireplace in the southwest corner of the north room provided heat and two windows with splayed jambs in the north wall light the space. A door in the east wall gave access to the passage. It is not certain if the present door in the south wall, which connects to the southern room, is contemporary to first period. There are two possible configurations for the southern room. In the first configuration the cooking fireplace was separated from the bake oven in the southeast corner by a jamb. In the second configuration the cooking fireplace would have almost completely covered the west wall of the room and the bake oven would have been incorporated into the fireplace. Evidence for this oven was found on the exterior west gable end wall. A door in the east wall of the south room opens into to the side passage. The ceiling joists in these two spaces were perhaps originally left exposed and subsequently covered with lath and plaster to create a greater sense of refinement.

The second floor is divided into three rooms and a small stair landing. The rooms more or less mirror the spatial configuration of the first floor. An unheated room is located over the passage, south of the stair landing. Two more rooms divide the western part of the second floor. A door connects the two rooms on the west side of the house and each has a door leading to the stair landing. A board partition wall separates the two western rooms from the stair landing. The joists in these two rooms were originally left exposed, whitewashed and decorated with fine chamfers. There is no evidence of fireplaces in either of these western two rooms, but the possibility exists that one or both of these rooms received heat from a stove that would have connected to the stack against the west gable wall. All the doors and hardware-H-L hinges-appear to be contemporary to the first period of construction.

The winder stair against the east gable wall leads to the attic. The floorboards in the attic are laid in tongue and groove, but splines join the boards which make up the stair box of the winder stair. A small casement window in the west gable wall lights the attic. The original roof structure does not survive.


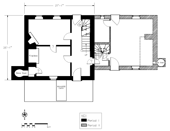
The period II additions also came at the hands of Moses Rowan. Between 1770 and 1783 Moses added a one-story stone block to the east gable end of the period I dwelling. This addition might have concurred with the removal of the original log house. Doors in the south and north elevation of the period II block give access to the new addition. The door in the period I east gable-end provides a connection between the two sections. The addition consists of a three-room plan. A small unheated room in the northwest corner is lit by a small window with splayed jambs in the north elevation. The adjoining space to the south contains both a passage to the period I block as well as a winder stair leading to the cellar and the attic. The largest space is set aside for the actual kitchen functions. Similar to the cellar underneath the period I block the cellar underneath the addition does not cover the whole width of the addition-it extends only 13 feet 7 inches from the east gable wall-and there is no sign of a relieving arch. The cellar under the period II addition does not have its own external entrance but does connect to the period I cellar. There is no information about the attic during this period.
This addition most likely indicated a shift in room functions, with the main kitchen functions moving to the new space. It is unclear whether the original cooking fireplace in the southern room of the period I block was scaled down in size and the bake oven removed at this point. The new addition was slightly less deep than the original block-only 21 feet deep instead of 25 feet-and a cooking fireplace and bake oven were located against the east gable wall. The survivals of these signs of functions of domestic work remain rare and require a more thorough documentation. The possibility exists that this fireplace took up most of the east gable wall. A dry-sink may have been located next to the fireplace in the northeast corner of the addition.
Farming must not have suited Moses Rowan. In 1783, he advertised his farm for sale, complete with "a two story stone house, three rooms on a floor (and) a large stone kitchen..." The Rowans and their seven children continued to live on the farm until 1788, when a blacksmith named Thomas Pennington purchased it for 1029 pounds. The sale permitted the Rowans to return to Philadelphia where in the 1790 census listed Moses Rowan as a carpenter. He died in 1799 during the yellow fever epidemic.
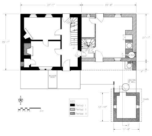
With subsequent sales of small parcels, the farm measured 120 acres in 1813 when William Denny, a wealthy farmer from Kent County, Delaware, purchased it. Denny moved to the farm with his family of nine children. Given his large family, his income (he owned three farms near Duck Creek) and evidence from tax assessments which suddenly increased by $329 in 1815, it is likely that Denny was responsible for the period III phase of construction.

William Denny raised the period II addition to a full two stories and expanded the second floor to the south. He extended the east gable end to the south by 4 feet and placed a large hewn beam between the east gable end of period II section and the east gable-end of period I block to support the south wall on the second. The south elevation on the second floor was executed in brick-laid in Flemish bond-instead of stone like the rest of the building. The fact that the brick was laid in Flemish bond indicates that this was clearly the front of the house and that the brick would have been left exposed to express the refined tastes of the owners-during a later period the whole building was covered with stucco to create a uniform exterior. A belt-course of two bricks in height ran underneath the windows on the second floor of the period III addition. This sense of refinement also becomes visible in the changes that occurred in the windows on the first floor of the period I block. The single window in the south elevation was enlarged to become a double window and the splayed jambs were curved on the interior. The splayed jambs of the windows in the north wall of the period I block received a similar treatment.
The expansion also incorporated a change in the kitchen functions, which reflect the changes that were taking place in domestic engineering during this period. The fireplace was scaled down to accommodate a built-in cabinet, a stove with a cooking-kettle, and the exterior brick oven was also brought into this new configuration. The built-in cabinet received a distinct primitive painted marbleized pattern, which was also used in the small room in the northwest corner of the period II block.
Evidence has shown that the second floor of the period III addition was divided into three spaces. Two equally sized rooms-measuring 11 by 13 feet-were located in the southern part of the second floor. The western room also incorporates the winder stair leading up from the first floor. A door in the partition wall connects both rooms. Each of these rooms is lit by a single window in the south wall. The third room on the second floor stretched the width of the period III addition. There are two ways of entry. First through a door in the partition wall with the southern room of the period III addition and second through a door in the west gable wall, which connects this floor to the second floor of the period I block. This room along the north side of the period III second floor receives its light from three windows with splayed jambs in the north wall. A built-in closet is located in the northeast corner against the east gable wall next to the chimney stack. The walls separating the three spaces were made of boards which were joined with tongue and groove. They extend through the lath and plaster ceiling and became visible after the removal of the attic floorboards. The boards of the wall running west to east showed signed of whitewash on the south side, but not on the north side. The lath and plaster ceiling is suspended from a framework of alternating principle joist and secondary joists. The secondary joists are much smaller and reused building materials.
The attic over both periods I and III can only be reached by the winder stair in period I block. A door in the east gable end of the period I block opens into the period III attic. The door has a wooden lock on it (the casing is made of wood). Two small casement windows in the period III east gable wall light this part of the attic. The floorboards consist of narrow sash sawn boards which show signs of whitewash. They were originally nailed to the principal joists.

Furthermore they built a small outbuilding 14 feet south of the period II addition. The upper floor of this outbuilding is more or less level with the first floor of the period II addition. It has a door in the north wall and two small casement windows, one of each piercing the east and west wall. The lower floor of this outbuilding is partially subterranean. Steps on the west side lead down to a small space with the same dimensions as the upper floor. Once inside this space you can access a root cellar which extends of the south side of the outbuilding, and is six steps below the lower level of the outbuilding. Access to the well is provided via an opening in the north wall of this small space. It appears that this well might also have been accessible from the porch. A shed roof was constructed between the south wall of the period III block and the north wall of the period III outbuilding to create a covered workspace. A frame wall extends five feet perpendicular from north wall of the outbuilding at its northwest corner. It has a small four-light window that slides up. Together with the shed roof it would have given extra shelter to whoever would have been working outside.

William Denny did not have long to enjoy his New Garden farm. Stricken with throat cancer, he wrote his will in November of 1815, leaving this farm to his eldest son, Collins. From William Denny's inventory, we gain some insight into the furnishings of the house. Six feather beds and covers, eight large damask tablecloths, eighteen napkins, twenty-four tea towels, silver dishes and spoons, multiple bureaus, corner cupboard, bookcase with Bible, Concordance and many books were some of the items totaling $7076.16. Four indentured black servants, three boys and a girl were also included with their remaining years of servitude.
Although the court probated William Denny's will in March 1816, his son, Collins, did not gain possession of the farm until his 21st birthday in April 1817. The following years were difficult for farmers with the bank panic of 1819 and subsequent drop in value of farms and farm products. Between 1818 and 1820, the assessed value of the Denny farm dropped by two/thirds. Collins held on until 1834 when he sold his farm moved to Wilmington and became a railroad conductor on the run from Philadelphia to Baltimore.
From 1834 until 1890, the farm was home to two generations of the Wilson family. Samuel Wilson purchased 148 acres, sold a parcel and at his death in 1848, his heirs released the 135-acre farm to his son, John, for $6642. During their tenure, the Wilson family made many improvements to the property. In 1859, John G. Wilson advertised the farm for sale, describing it as 135 acres, 20 acres under large thriving timber, the balance in a high state of cultivation. To describe the buildings, he wrote, "...improvements are a large stone house, with pump at the door; wash house, milk house, wood house, tenant house, spring house, and all the out building belonging to a highly improved dairy or grazing farm, good barn, part stone and part frame, with pump in the yard." John Wilson citing poor health, advertised repeatedly over the next thirty years in the Village Record, listing his farm for sale; the farm did not sell until 1890.
A final major alteration took place towards the end of the nineteenth century. The owner-most likely John Wilson-altered the roof to accommodate a cross-gable to reflect a new fashion. The original rafters with their cut-outs for the purlins are still visible on top of the period I east gable wall. Several other minor changes occurred during later periods, such as the removal of a partition wall on the first floor in the period I block, between the side passage and the southern room.
The purchaser in 1890, Teresa Foulk, was assembling a large tract of land, several farms, for her son, Dr. Israel Pusey Foulk. He ultimately built a mansion on land to the west of the Wilson farm. John Wilson's land became a tenant farm with renters living in the house. In 1919, Dr. Foulk willed the farm and stone house of Moses Rowan, the Denny and Wilson families to his niece, Bessie McVaugh and her husband William. The McVaughs spent their lives on the farm, willing it to their daughter, Leanore, in the 1960's.